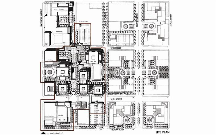
A company holding development rights to a significant area of Kansas City, Missouri within the downtown loop desired to amend the development area limits.  CP&A reviewed previous master plans, new market data and prepared an amended master plan, which envisioned a "campus-like" setting of mixed-use development.

The original development limits were down-scaled to an approximate ten-block area, focusing resources in areas that were most familiar for the developer.  The two existing grand movie theater properties owned by the developer had the potential for preservation and revitalization as unique cultural amenities.